













Vă prezentăm o proprietate rezidențială de excepție, o casă unifamilială (D+P+E) în regim cuplat (cu autorizație de construire proprie). Proprietatea, intabulată în Cartea Funciară, este situată într-un Plan Urbanistic Zonal (PUZ) reglementat, dedicat exclusiv construcției de case noi, asigurând un mediu de locuire modern și dezvoltat.
Casa este construită la standarde înalte de eficiență energetică și durabilitate:
-Structură de rezistență din fundații și diafragme din beton armat (cu hidroizolație și dren perimetral).
-Izolație termică de vârf: Vată bazaltică Knauf Dual Density de 15 cm la exterior, Vată bazaltică de 30 cm la planșeul dintre etaj și pod, și izolație termică de 20 cm a plăcii de pe sol.
-Tâmplărie tripan de înaltă performanță, Rehau Synego și Geneo.
-Acoperiș sarpantă cu învelitoare din țiglă ceramică Creaton Balance Cupru.
-Finisaj exterior cu tencuială decorativă STO Marlit.
Proprietatea include infrastructura completă pentru un nivel superior de confort modern:
-Sistem de încălzire în pardoseală TECE pe toată suprafața casei (inclusiv garaj).
-Infrastructură pentru pompă de căldură aer-apă și panouri solare.
-Infrastructură pentru sistem de aer condiționat multisplit (o singură unitate exterioară pentru patru unități interioare).
-Instalație electrică din cupru cu priză trifazică în garaj pentru încărcarea mașinilor electrice.
-Izolare fonică și termică între etaje cu beton celular BCU.
-Toate utilitățile racordate: apă, canalizare (menajeră și pluvială), curent trifazic, gaz și fibră optică.
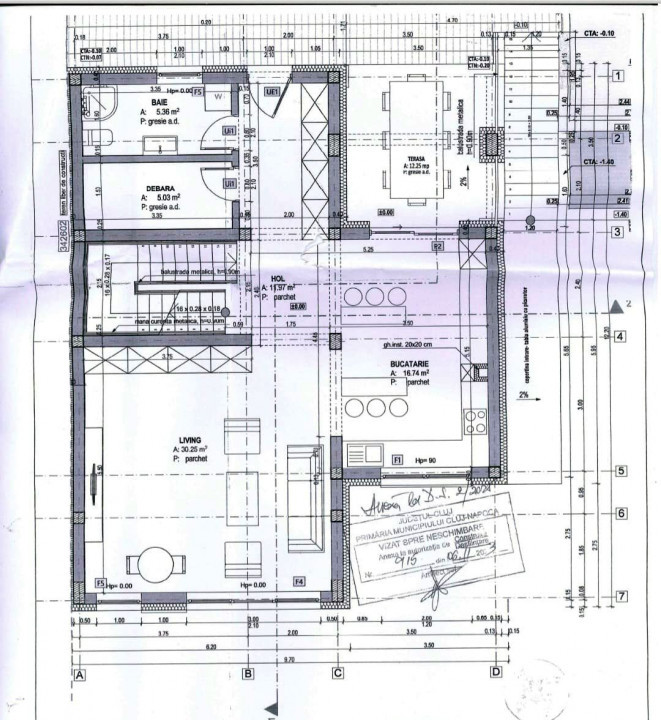
Compartimentare spațioasă și funcțională
Cu o suprafață construită desfășurată de 305 mp și o suprafață utilă de 237 mp, casa oferă un spațiu generos, organizat pe trei niveluri și un pod mansardabil:
-Demisol (76,76 mp utili): Garaj pentru două mașini, birou, spațiu tehnic, pivniță, hol.
-Parter (81,60 mp utili): Living, bucătărie, baie, cămară, hol și o terasă acoperită.
-Etaj (78,61 mp utili): Dormitor matrimonial cu baie proprie, două dormitoare, baie secundară, terasă și balcon acoperite.
-Pod mansardabil.
Amplasarea casei într-o zonă în plină dezvoltare asigură acces rapid la facilitățile urbane esențiale:
-Acces pe drum privat asfaltat, care va fi securizat cu poartă electrică, formând o curte comună semi-privată.
-Proximitate excelentă (timp estimat de mers pe jos conform Google Maps): 3 min până la stațiile de tramvai și autobuz, 9 min până la Auchan, 15-17 min până la școli renumite (Nicolae Iorga, Ion Agârbiceanu) și grădinițe (Floare de Iris), precum și până la viitorul Rivus Mall.
Această proprietate semifinisată reprezintă investiția ideală pentru cei care doresc să combine calitatea superioară a construcției și eficiența energetică cu o localizare strategică și posibilitatea de a finaliza amenajările interioare conform propriilor gusturi.