




Delta House vă propune spre vânzare o unitate locativă tip duplex, situată într-una dintre cele mai căutate și liniștite zone ale cartierului Bună Ziua, în proximitatea străzii Mihai Romanul. Proprietatea se distinge printr-o arhitectură modernă, o execuție tehnică fără compromisuri și o vedere panoramică interesantă asupra orașului.
Important: Pentru această proprietate, comisionul de achiziție este 0%.
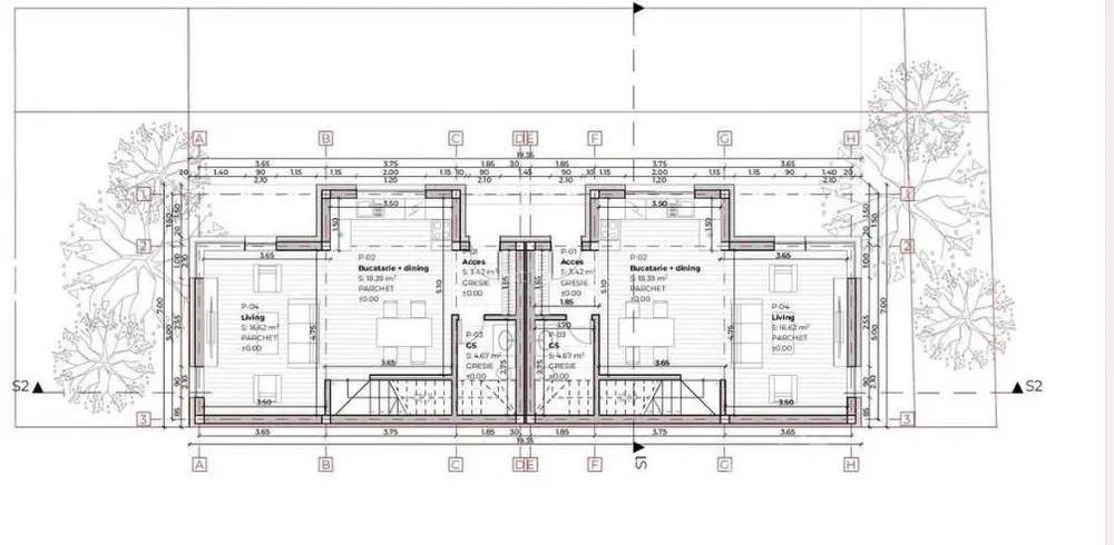
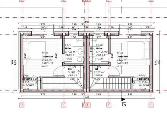
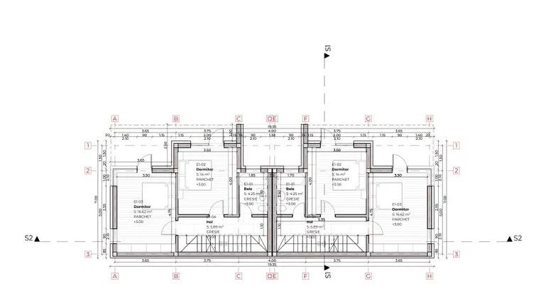
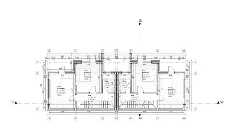
Detalii suprafețe și compartimentare
Locuința este dispusă pe un regim de înălțime Parter + Etaj + Etaj Retras, oferind un spațiu aerisit și bine vitrat:
Suprafață utilă: 119 mp;
Suprafață teren: 170 mp;
Configurație: living, bucatarie cu loc de luat masa, 3 dormitoare, 3 bai, balcon si terasa.
Specificații Tehnice și Finisaje
Casa se predă la stadiul de semifinisat la interior și complet finisat la exterior, utilizând materiale din gama premium:
-Sistem de încălzire: Încălzire în pardoseală pe toate nivelurile, asigurând confort termic eficient.
-Eficiență Energetică: Dotată cu panouri solare de 6 kW, reducând semnificativ costurile de întreținere.
-Izolație: Termosistem de 15 cm (EPS 100), plasă și adeziv Baumit, finisat cu tencuială decorativă Wieka.
-Design Exterior: Fațadă principală placată cu piatră naturală și tâmplărie PVC cu profil de aluminiu.
-Interior: Pereți tencuiți și gletuiți cu precizie (gama Baumit), șape autonivelante și toate instalațiile (electrice, termice, sanitare) trase pe poziții.
Curte și Facilități
Exterior: Curte complet amenajată și delimitată pentru intimitate.
Parcare: Loc de parcare suprateran situat chiar în fața imobilului.
Acces: Zonă de case retrasă de traficul intens, cu acces facil, drum asfaltat și toate utilitățile racordate.
Locație: Excelent conectată la oraș, cu stații de transport în comun la doar câteva minute distanță.